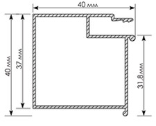
Ал. Профиль БП40 2м
Профиль БП 40 используется для установки натяжного потолка с нишей под гардину прямолинейной и криволинейной формы. Благодаря его применению, процесс монтажа становится более легким и быстрым. Профиль БП 40 — единственное решение, если к стене, к которой примыкает натяжной потолок, сложно или невозможно закрепиться при помощи саморезов.
Отзывы не найдены
