Профиль ПЛ 55 2,5 м
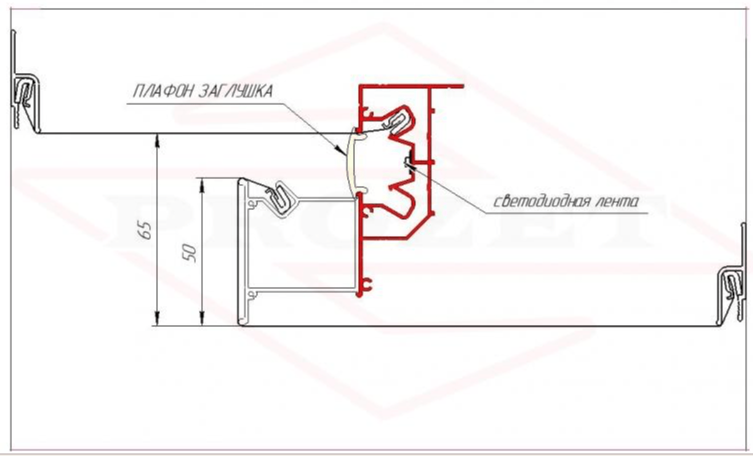
Профиль Prozet ПЛ 55 — двухуровневый алюминиевый профиль, предназначенный для создания стильного и функционального светового оформления в интерьере.
Преимущества профиля:
- Эффективное охлаждение - алюминиевый корпус профиля эффективно отводит тепло, предотвращая перегрев светодиодных лент и продлевая их срок службы.
- Универсальность - подходит для использования разных типов светодиодных лент, включая монохромные, RGB и RGBW.
- Защита - профиль защищает светодиодные ленты от пыли, влаги и механических повреждений. Светодиодная лента маскируется светорассеивающей вставкой.
- Эстетика - двухуровневая конструкция позволяет создавать интересные световые эффекты, добавляя глубину и объём освещению. Минимальный радиус скругления углов 15 см. Высота ступени 5,5 см.
Применение - жилые и коммерческие помещения.
Отзывы не найдены
