А2 Профиль Контурный (Contour) (2м) 16/уп
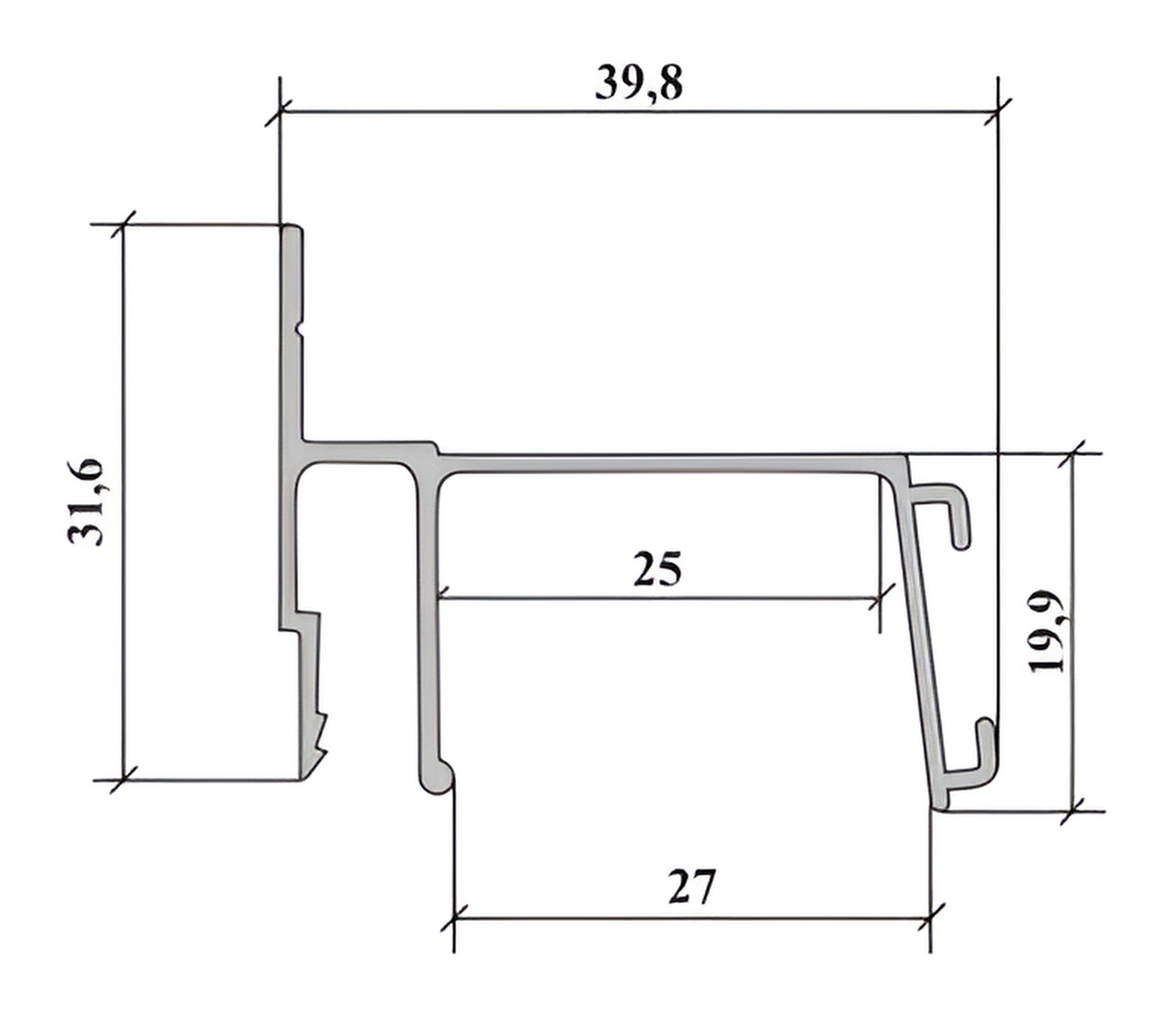
Профиль Contour Контурный предназначен для монтажа натяжных потолков с гарпунной системой крепления полотна, с полкой для светодиодной ленты, направленной вниз, и возможностью закрытия профиля стеновой вставкой.
Особенности профиля:
- чёткий, ровный контур подсветки шириной 27мм;
- удобство монтажа профиля и светодиодной ленты;
- скрытое расположение LED-ленты;
- 100% стыковка профиля за счет специального паза;
- рекомендуемая мощность LED-ленты до 14,4 Вт/м.
Отзывы не найдены
